Vedic Architecture Projects
Mandodari Consulting successfully practices Sthapatya Veda and Vaastu Shastra internationally. Our clients are in the United States, India, Ireland, Australia and Russia.
- Project in West Bengal, India, Year 2008
Residential house under construction in West Bengal, India. Designed per Sthapatya Veda and Ayadi Calculations. House construction is still in progress.
Mandodari Consulting provided Ayadi calculations, floor plan layout and schematic elevations. We work closely with our clients on all details of design to get the best results
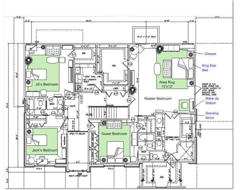
Detail drawing of the floor plan, explaining some important elements of Vedic Architecture.
Puja for the new house
Construction progress

South Elevation - March 2009
- Project in The USA, Year 2008
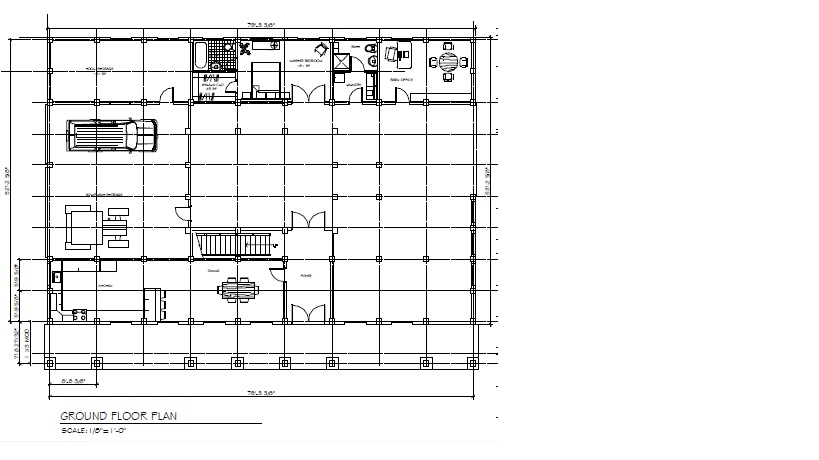
Mandodari consulting provided Ayadi calculations and schematic floor plan design.
Design work is in progress.
Plot evaluation sample
- “Flats for Health” - Project in Siberia, Russia, Year 2008
Mandodari LLC provided Vaastu consulting for a large new residential community near Omsk, Russia. Project was named “Flats For Health”. Several architectural companies and individual architects were competing with innovative design ideas, but Vedic Design was the most impressive approach and judges nominated our team for the first prize.
Olga Mandodari worked in collaboration with Svetlana Litcova, Vastu consultant (VastuCenter) and a Russian Architect. Team successfully won this completion. After all we became friends.
Proposed Condominiums – “Flats for Health”
- Artist project in Ireland, Year 2008
Provided Ayadi Calculation for a painting fame. The image below represents only a sketch for the future Lakshmi painting.
Concept of Vaastu Purusha Mandala was implemented for the calculations of the frame. .
"Shri Maha Lakshmi Paduka"
Original painting by Piitaa. www.piitaa.com
- Project - Ayadi Calculations for Mount Soma Community, North Carolina, USA under Dr. Michael Mamas, Year 2008
www.mountsoma.com
Mandodari Consulting provided Ayadi calculations for several new buildings at Mount Soma Spiritual Community and the Learning Center where Dr. Michael Mamas is a Spiritual Teacher.
Mandodari Consulting welcomes all new clients!
Services are available though the Internet and house visits.
|